SCD-A系列母线槽
SCD-B系列母线槽
SCD-C系列母线槽
SCD-D系列智能母线槽
管型母线
高压共相母线
耐火母线槽
贵州顺昌达电气有限公司
24小时咨询电话:400-6050-388
传真:0851-86854878
邮箱:418082085@qq.com
地址:贵阳市观山湖区长岭南路国电金海域7-1104
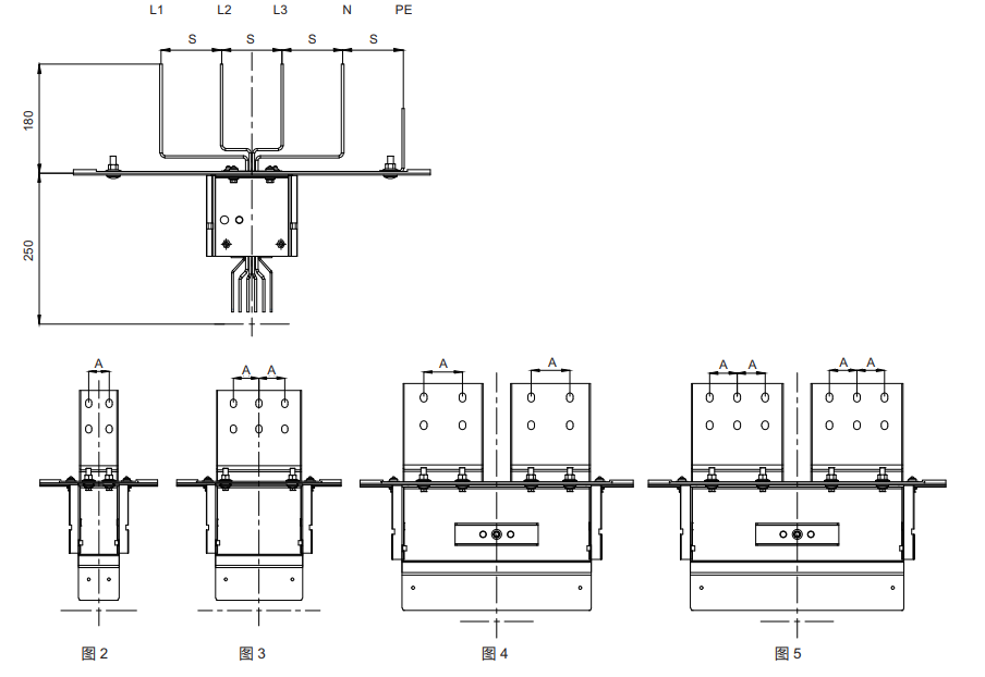
产品介绍:母线槽馈电单元也就是母线槽始端,通过铜排与配电柜连接,通常叫始端箱
馈电单元-贵阳母线槽生产厂家
母线槽馈电箱 标准法兰 法兰领切口线和钻孔样板 馈线法兰领孔位置和间距 法兰端外形图,S=100mm
上一篇:贵州母线槽:母线槽直线段规格
下一篇:空气型母线槽和密集型母线槽的区别是什么呢?
全国服务热线电话: 400-6050-388
销售部一 韩先生手机号: 15185085488
销售部二 袁女士手机号: 18096116722
销售部三 韩先生手机号: 15186954976
销售部四 袁先生手机号: 18385193488
点击号码可直接拨打电话